Описание
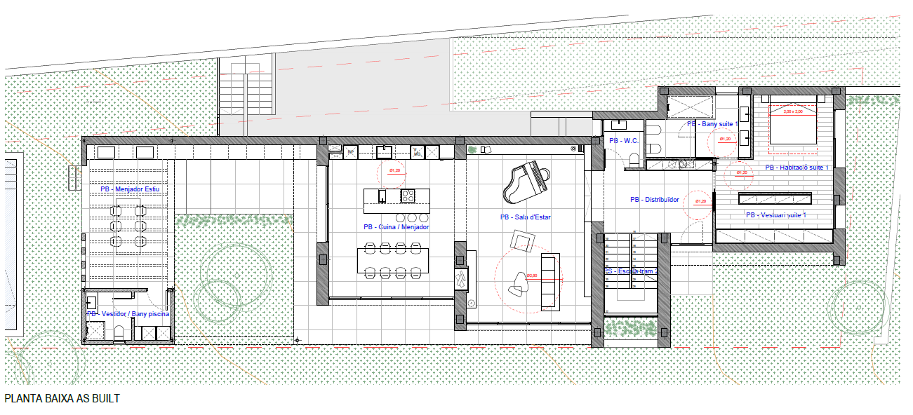
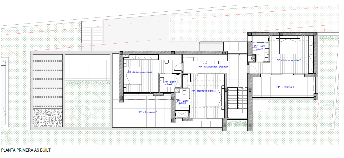
Ваш новый дом мечты в самом сердце Платжа д'Аро! Эта впечатляющая недавно построенная вилла площадью 555 м² предлагает вам роскошный и современный образ жизни. На первом этаже вас встретит элегантная прихожая, ведущая в главную спальню, уютную гостиную и кухню в офисном стиле, которая идеально сочетается со столовой и террасой. На втором этаже расположены три спальни с ванными комнатами, каждая из которых оборудована полноценной ванной комнатой и террасами с панорамным видом на город и море.Подземный этаж представляет собой универсальное пространство, включающее большой гараж на две машины, прачечную, полную ванную комнату и комнату со встроенными шкафами. Вилла оснащена самыми современными технологиями, такими как солнечные батареи, домашняя автоматика, кондиционеры и полы с подогревом, что гарантирует максимальный комфорт и энергоэффективность. Наслаждайтесь солнцем на большой открытой террасе с бассейном с соленой водой, зоной джакузи и полноценной ванной комнатой. Все это на участке площадью 736 м², выходящем на юг, что обеспечивает класс энергопотребления А. Не упустите возможность жить в этом раю!